全國統一服務熱線:13083218322
立即咨詢
總公司注冊資金5000萬元,總資產近億元。工廠占地6萬多平方米,其中,建筑面積近2萬平方米。
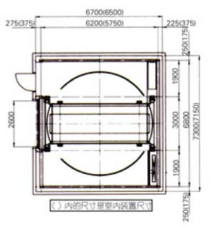
立即咨詢主營機械停車改造、停車設備管理、立體停車投資、智能停車維修,公司現可以提供垂直升降類、平面移動類、倉儲堆垛類、升降橫移類、簡易升降類、垂直循環類、汽車專用升降機七大類二十余品種的產品。
立即咨詢擁有國家質量監督檢驗檢疫總局頒發的PJS型三層及以下、PSH型七層及以下、PCS型二十五層及以下、PPY型十一層及以下、PJSL型二層等特種設備制造許可A級證書,省局下發的安裝、維修、改造資質,并擁有多項國內外使用新型發明。
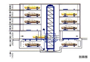
立即咨詢停車設備可適用于老舊小區改造,具有車位擴容、直進直出停車模式、24小時動靜態防墜設備發明裝置、PLC可編程控制系統等四大核心技術創新
立即咨詢擁有完善的服務體系,在線售后技術人員24小時為您提供服務,完善的服務網絡系統,為客戶提供專業周到的技術服務,可根據客戶遇到各類疑難問題,作出具體技術解決方案。
立即咨詢全國統一服務熱線:13083218322
立即咨詢
公司新聞

智慧停車運營管理服務是一種基于現代科技手段的創新解決方案,旨在提升城市停車管理的效率、優化停車資源配置,并為車主提供更加便捷、停車體驗。...
查看更多
常見問題
智能停車的普及度在近年來得到了顯著提升...
智慧停車運營管理服務融合了多種先進技術,以提高停車效率、優化用戶體驗并降低運營成本。...
智慧停車運營管理服務相較于傳統的停車管理方式,具有諸多顯著優勢。...
立體停車庫和普通停車場在多個方面存在顯著差異,這些差異主要體現在空間利用、設計特點、使用體...

祥云停車是一家集研發、制造、銷售、安裝、售后于一體的專業機械立體車庫生產企業,產品包括停車設備,立體停車,機械停車,立體車庫,智能泊車,機械車庫,總公司位于寧波余姚市,生產基地位于山東省濟南市鋼城區顏莊鎮上北港村205國道旁,成立于2013年6月,前身為寧波云環立體車庫有限公司。公司以現代化生產經營模式緊緊把握市場脈搏,以“為客戶解決合適的停車系統方案”為目標,以“服務與品質才是有力的宣傳”為企業發展之本。公司現有生產廠房及辦公共10000平方,有各類技術及管理、生產員工共60余人,截止目前已擁有國家質量監督檢......
查看更多
掃碼進入手機站